Typology:
Apartment
Surface:
80 m2
Bedrooms:
2
Rooms:
3
Floor:
8th floor
Exposure:
East South-east South-west
Services
Home automation, Furnished, Connected thermostat, Lift, Concierge, Air-conditioning, Double glazing, Sliding windows, Electric shutters, Irrigation sprinkler, Caretaker, Condominium pool, Outdoor lighting
Proximities
Town centre, Shops, Sea, Public parking, Beach, Sea port, Supermarket
Golden Square – Le Mirabel - Duplex Penthouse
Located on the top two floors of the prestigious "Le Mirabel" residence, this superbly renovated and tastefully decorated penthouse is offered turnkey.
Spread over two levels, it offers a refined atmosphere blending luxury, comfort, and functionality. The property is currently configured with 2 bedrooms, one of which is set up as an office, ideal for telecommuting or guests.
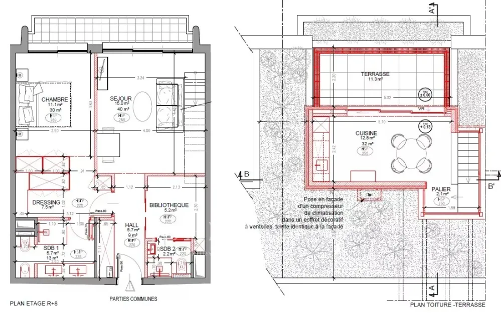
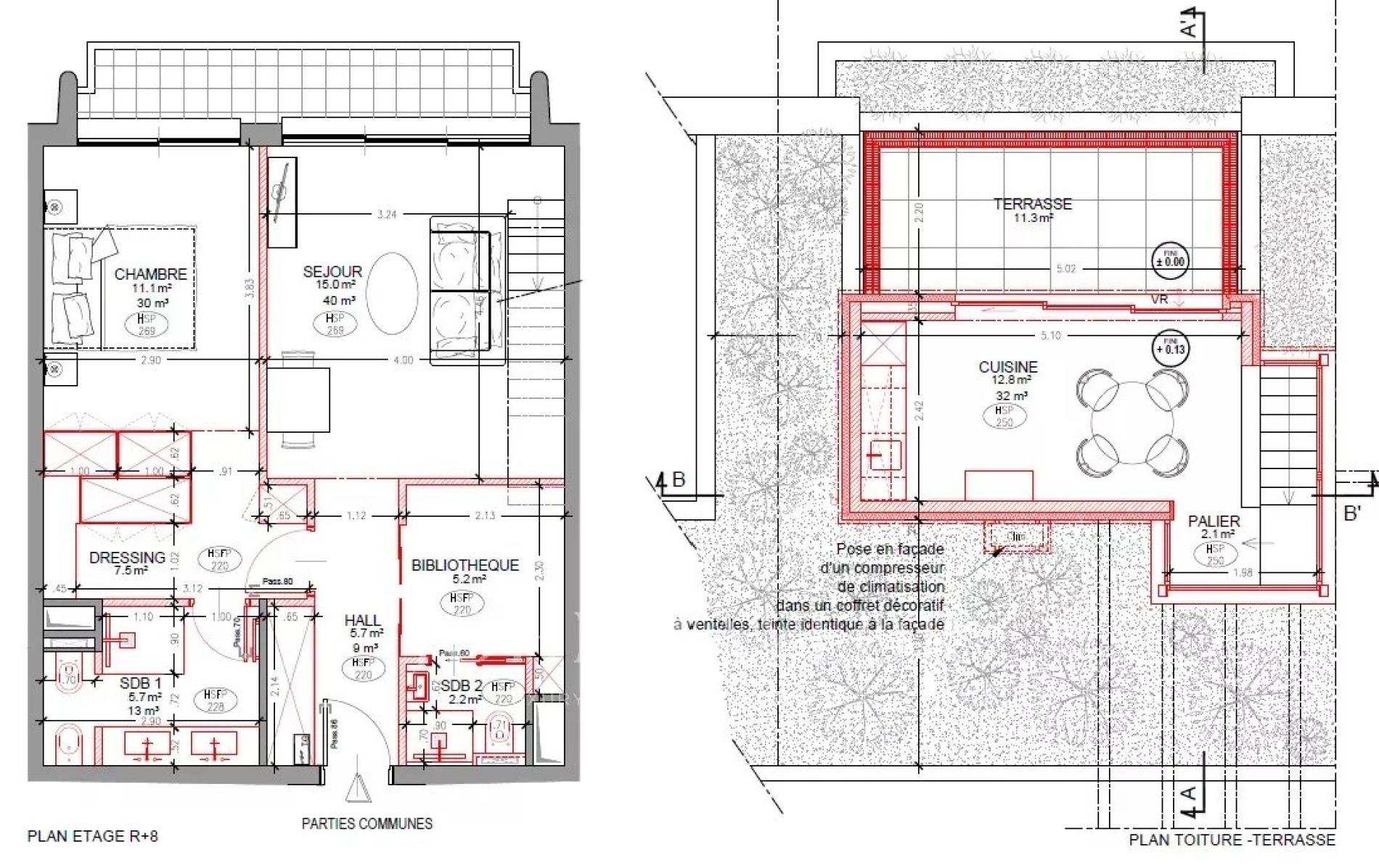
8th floor:
A bright south-east facing living room with sea view & Mareterra
A master bedroom with en-suite bathroom and dressing room
A second bedroom or office
A shower room
Guest toilets
An elegant staircase leading to the upper floor
9th floor:
A fully equipped open kitchen
A dining area filled with light thanks to a large bay window
Access to a landscaped terrace oriented East-South-West, a true haven of peace
A cellar and a large parking space, 3.5 meters wide, complete this rare property.
Rented furnished in 2025 for a one-year duration – Monthly rent: €16,500 including charges, offering an excellent rental return for an investor.]}]}}```d ```eslint 42:1 Unexpected any no-explicit-any 5 | function greet(name) { 6 | return
Spread over two levels, it offers a refined atmosphere blending luxury, comfort, and functionality. The property is currently configured with 2 bedrooms, one of which is set up as an office, ideal for telecommuting or guests.
8th floor:
A bright south-east facing living room with sea view & Mareterra
A master bedroom with en-suite bathroom and dressing room
A second bedroom or office
A shower room
Guest toilets
An elegant staircase leading to the upper floor
9th floor:
A fully equipped open kitchen
A dining area filled with light thanks to a large bay window
Access to a landscaped terrace oriented East-South-West, a true haven of peace
A cellar and a large parking space, 3.5 meters wide, complete this rare property.
Rented furnished in 2025 for a one-year duration – Monthly rent: €16,500 including charges, offering an excellent rental return for an investor.]}]}}```d ```eslint 42:1 Unexpected any no-explicit-any 5 | function greet(name) { 6 | return
Property promoted by
John Taylor
Monaco
Monaco
Asking: € 8,450,000
Property promoted by
John Taylor
Typology:
Apartment
Surface:
80 m2
Bedrooms:
2
Rooms:
3
Floor:
8th floor
Exposure:
East South-east South-west
Services
Home automation, Furnished, Connected thermostat, Lift, Concierge, Air-conditioning, Double glazing, Sliding windows, Electric shutters, Irrigation sprinkler, Caretaker, Condominium pool, Outdoor lighting
Proximities
Town centre, Shops, Sea, Public parking, Beach, Sea port, Supermarket
Golden Square – Le Mirabel - Duplex Penthouse
Located on the top two floors of the prestigious "Le Mirabel" residence, this superbly renovated and tastefully decorated penthouse is offered turnkey.
Spread over two levels, it offers a refined atmosphere blending luxury, comfort, and functionality. The property is currently configured with 2 bedrooms, one of which is set up as an office, ideal for telecommuting or guests.
8th floor:
A bright south-east facing living room with sea view & Mareterra
A master bedroom with en-suite bathroom and dressing room
A second bedroom or office
A shower room
Guest toilets
An elegant staircase leading to the upper floor
9th floor:
A fully equipped open kitchen
A dining area filled with light thanks to a large bay window
Access to a landscaped terrace oriented East-South-West, a true haven of peace
A cellar and a large parking space, 3.5 meters wide, complete this rare property.
Rented furnished in 2025 for a one-year duration – Monthly rent: €16,500 including charges, offering an excellent rental return for an investor.]}]}}```d ```eslint 42:1 Unexpected any no-explicit-any 5 | function greet(name) { 6 | return
Spread over two levels, it offers a refined atmosphere blending luxury, comfort, and functionality. The property is currently configured with 2 bedrooms, one of which is set up as an office, ideal for telecommuting or guests.
8th floor:
A bright south-east facing living room with sea view & Mareterra
A master bedroom with en-suite bathroom and dressing room
A second bedroom or office
A shower room
Guest toilets
An elegant staircase leading to the upper floor
9th floor:
A fully equipped open kitchen
A dining area filled with light thanks to a large bay window
Access to a landscaped terrace oriented East-South-West, a true haven of peace
A cellar and a large parking space, 3.5 meters wide, complete this rare property.
Rented furnished in 2025 for a one-year duration – Monthly rent: €16,500 including charges, offering an excellent rental return for an investor.]}]}}```d ```eslint 42:1 Unexpected any no-explicit-any 5 | function greet(name) { 6 | return